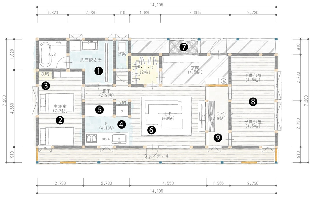
洗面脱衣室には室内干しをできるようにスペースを広く計画し、物干ユニットを設けました
開放的な土間リビング


開放的な土間リビングがある家
解説
主寝室は子どもが小さい時に一緒に寝ることを考慮して部屋を少し広めに計画しました
収納の隣に造り付けの本棚と机を設け、化粧や読書、軽い読書などができます
家族との関りを深めるためにキッチンとリビングの間をオープンとしました
空間を広く見いせるために壁を設けず両面を収納カウンターとして、キッチンと廊下の両面から収納を使えるようにしました
LDと土間を区切らず一体とすることで、空間を広く見せ外との繋がりを強くしました
土間と外を繋ぐため開口部を設けその下にベンチをつくりました
また、北の道路からの視線を軽減するために室内の景観をよくするために、窓の景観をよくするために、窓の外に植栽とスリットを計画しました
部屋を2部屋としても1部屋としても使える計画としたため、子どもが1人の家族が2人に増えた場合などにも対応できます。子どもがいない場合は、他の用途として使うことができます
フリースペースはリビングから200mm床が上がっており、仕上げがタイルカーペットになっています
床にそのまま座って作業したり、寝っ転がったりできます
また子どもが遊んだり、勉強したりできます
子どもが使わない場合は別用途で使用できます
入口を2つにすることで動線の回遊性を高めました




















